Casa all'Acquaviva


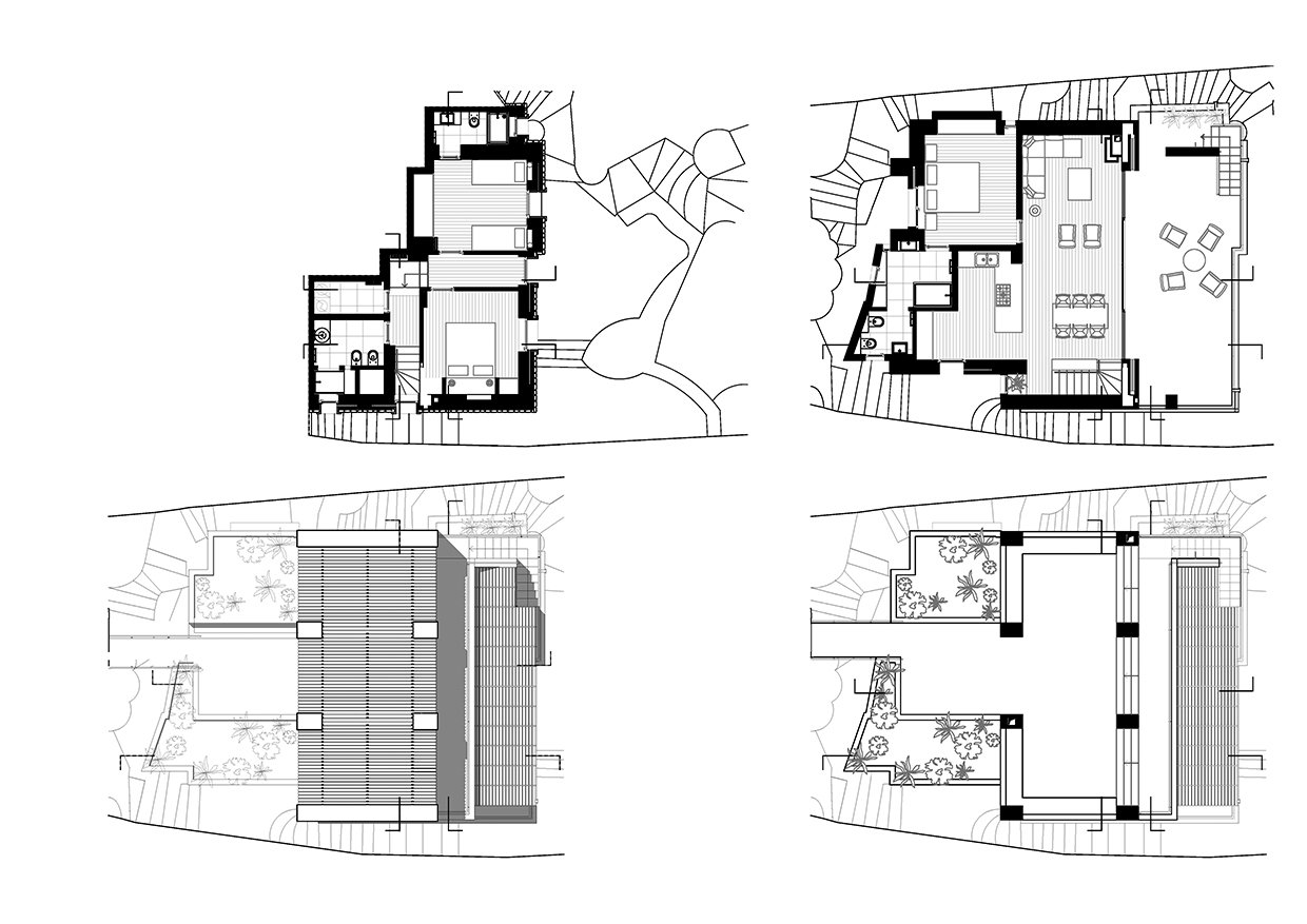
The premise of the project is an enchanted landscape and an existing building that undervalues it. Contemplating the sea is the target of the project. A house is born which, like a tribune, looks out over a breath-taking vista from its terraces. Thanks to the land incline, all one can see from the living room is the sea, as if from a ship.


Collaborators: Ozlam Ayalp
Impresa: Marullo Costruzioni, Calimera
Direzione Lavori e strutture: Ing. Antonio Zollino
Carpenteria in legno e serramenti: Elio Miglietta, Giuggianello