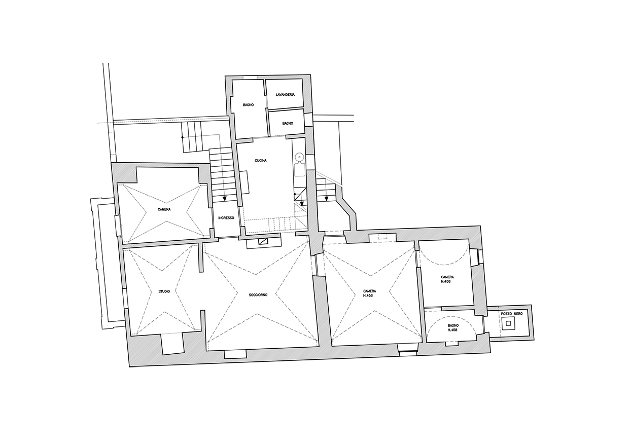
Casa a San Dana


Restoration of an ancient house on the far south of Salento. The work has been mostly in clearing and repairing the existing structure with the purpose to preserve the patina and remain within a limited budget.