Casa a Champoluc


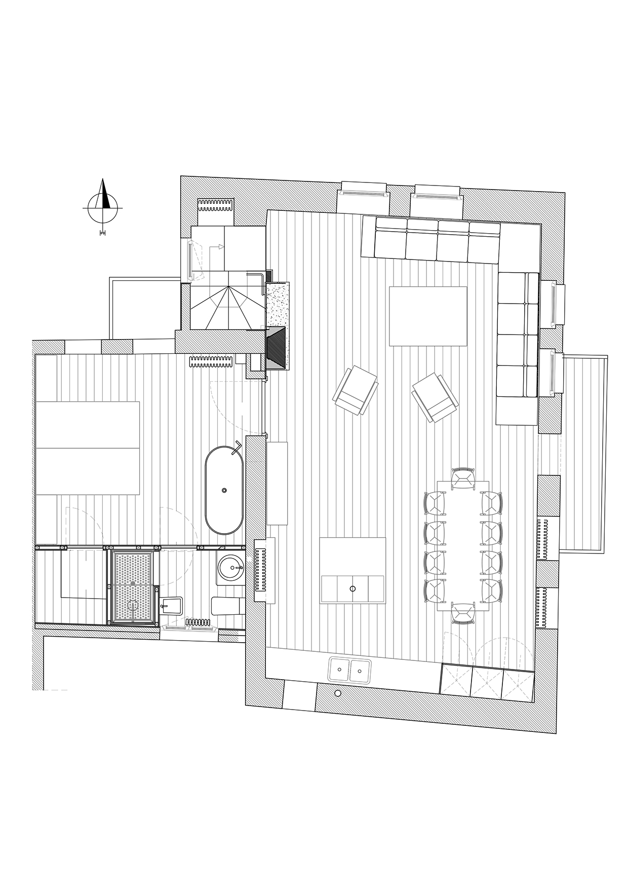
Refurbishing of an apartment in Champoluc old village (Val d’Ayas). The endeavour implied the radical rebuild of the attic, roof, internal partitions, stairs, bathrooms and wall insulation. Special attention was given to reusing existing materials such as the floor, stone-walls and internal larch-wood partitions.


Impresa: Valente Costruzioni, Morgex
Mobili: Gabriele Bertola, Monza.