Rascard, Val d'Ayas


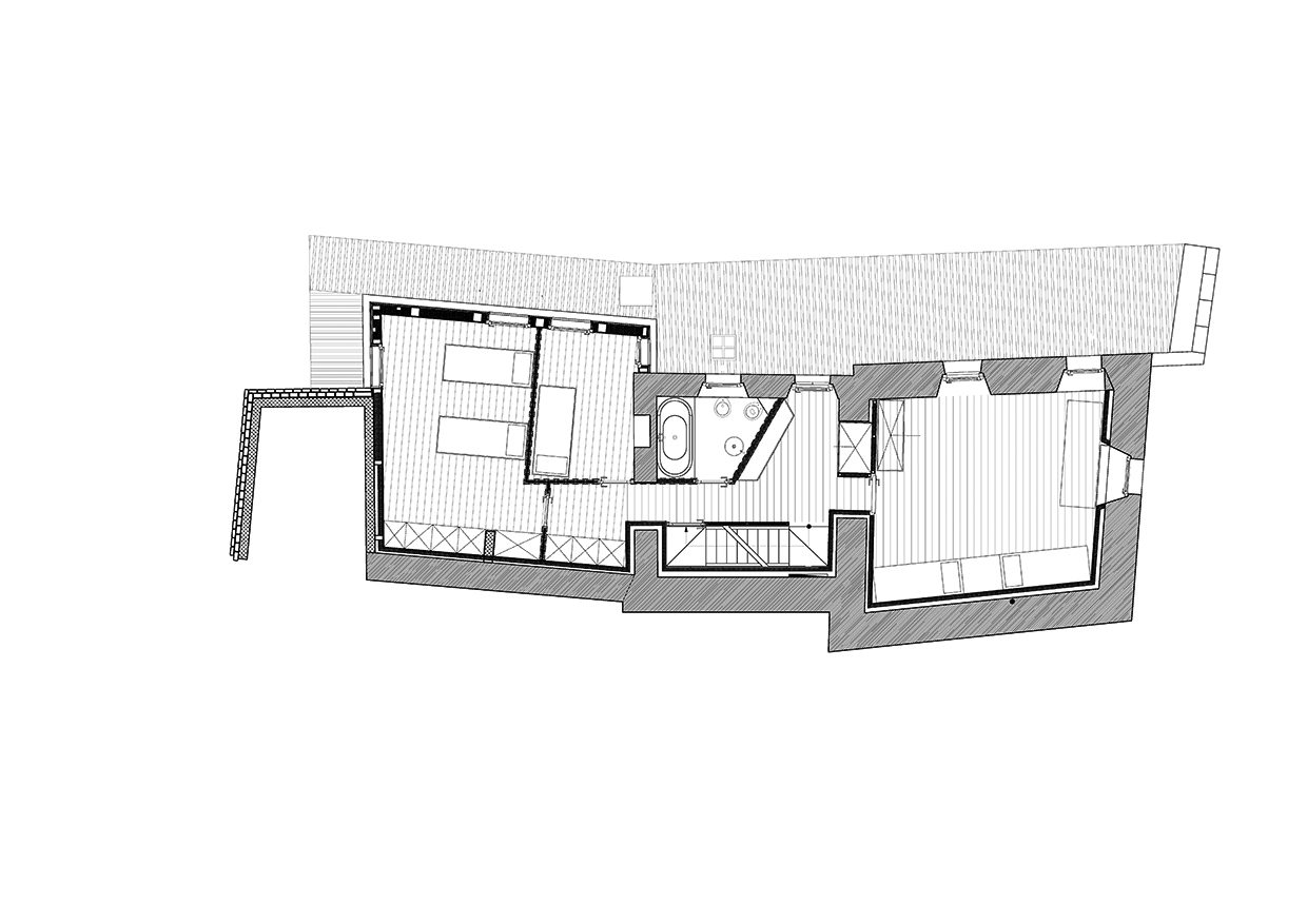
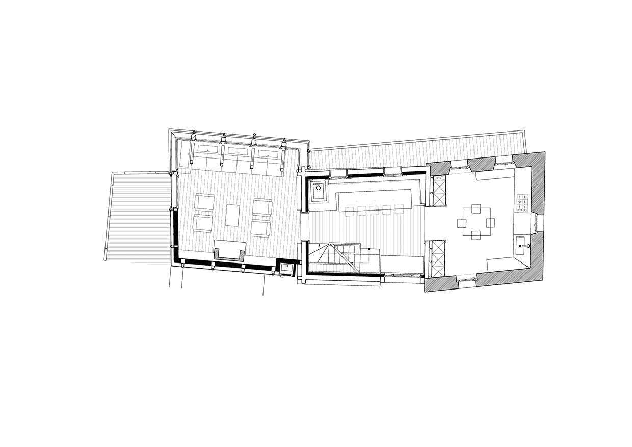
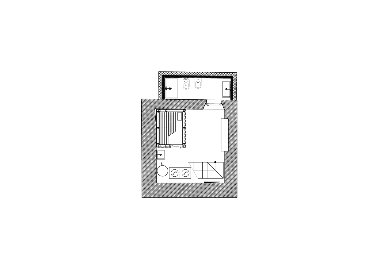
The listed rascard (typical log-cabin) dating back to 1819 undergoes restoration to repurpose it as vacation home. A north-facing volume, attached to the rascard in recent times, is redesigned with a contemporary style so as to revive the appreciation of the original log-cabin in its initial proportions.


Impresa: ALFA Legno, Verres
Strutturista: Emanuele Franchi, Brescia