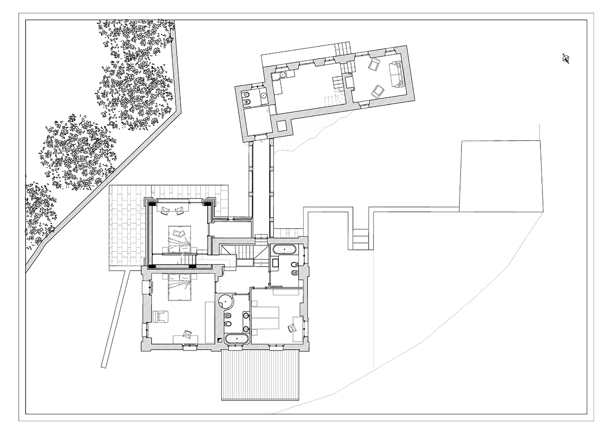
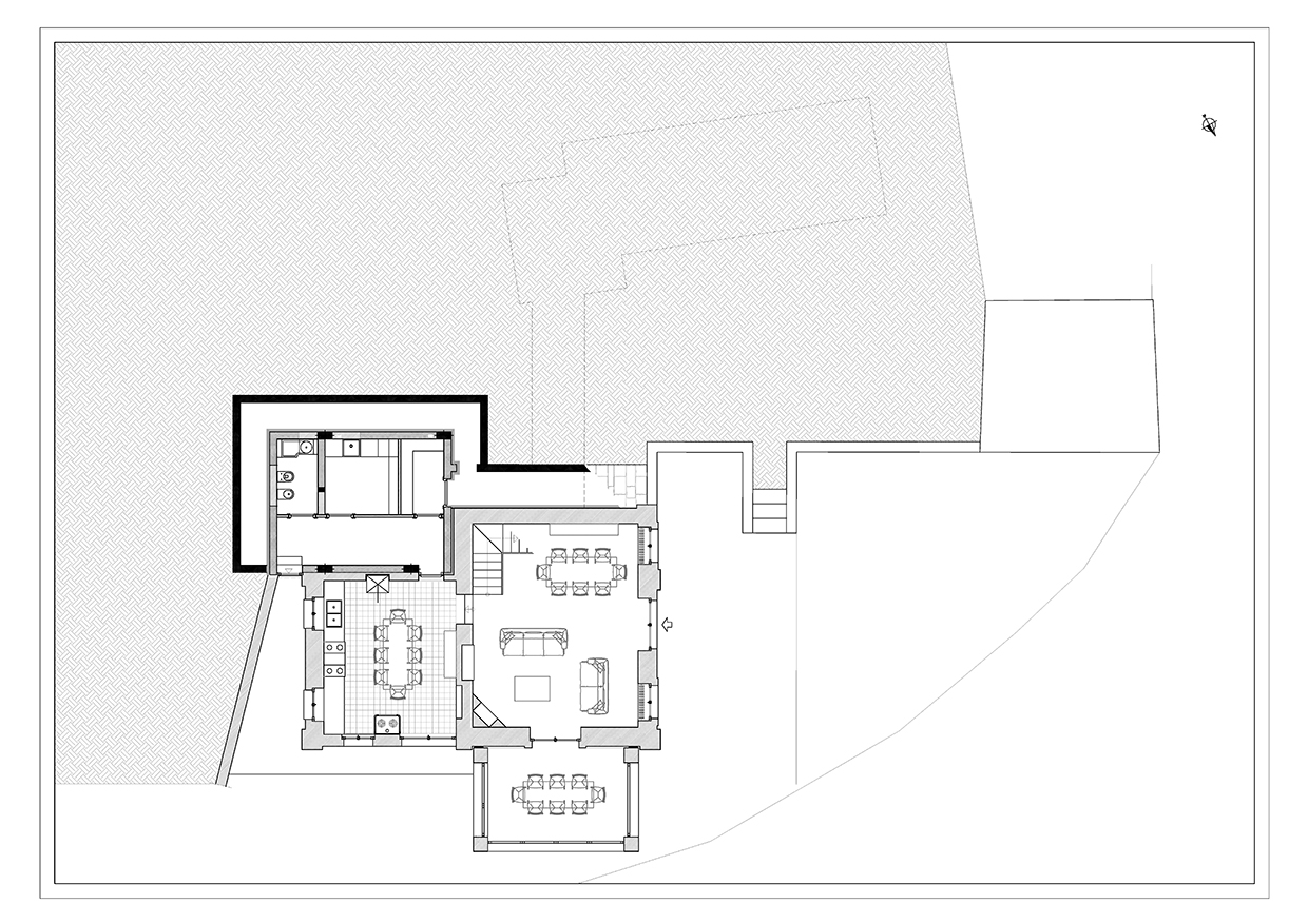
Casa, Val Luretta


Restoration of an agglomeration of five small houses in a nine-hectares estate. The aim of the project is to realize a main house of larger dimensions while preserving the existing structure. We therefore thought of not only extending, within the consented limits, but also of joining two of the houses.


Impresa: Ediltuna, Tuna
Serramenti: Guidotti
Impianti: Anselmo Castignoli
Elettricista: Davide Cugini