Casa, Andrano


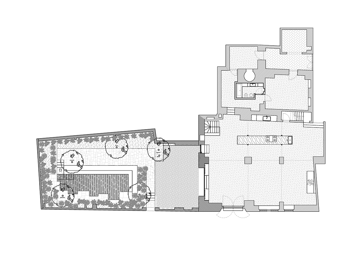
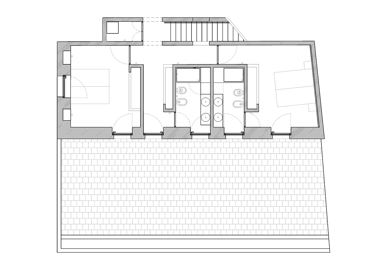
Andrano is a village close to the east coast in southern Salento. The main feature of this building is a large 130-m2 space constituted by six groin vaulted bays allocated for the living room area. The project aimed to clear the space from any additions and to connect the house with the garden. The large living room includes a kitchen inserted in the space without modifying it. The bedrooms are located both on the ground and the first floors. A swimming pool has been built in the garden.


Photo: Alberto Novelli
Impresa: D'amico Costruzioni srls, Alessano
Impianti: Daniele Trazza, Muro Leccese
Elettrico: Biagio Raona, Corsano
Cucina: 3C Falegnameria di Diego Colombo, Bernareggio
Falegname: Elio Miglietta, Giuggianello
Serramenti e carpenteria metallica: F.lli Moroni srl, Alessano