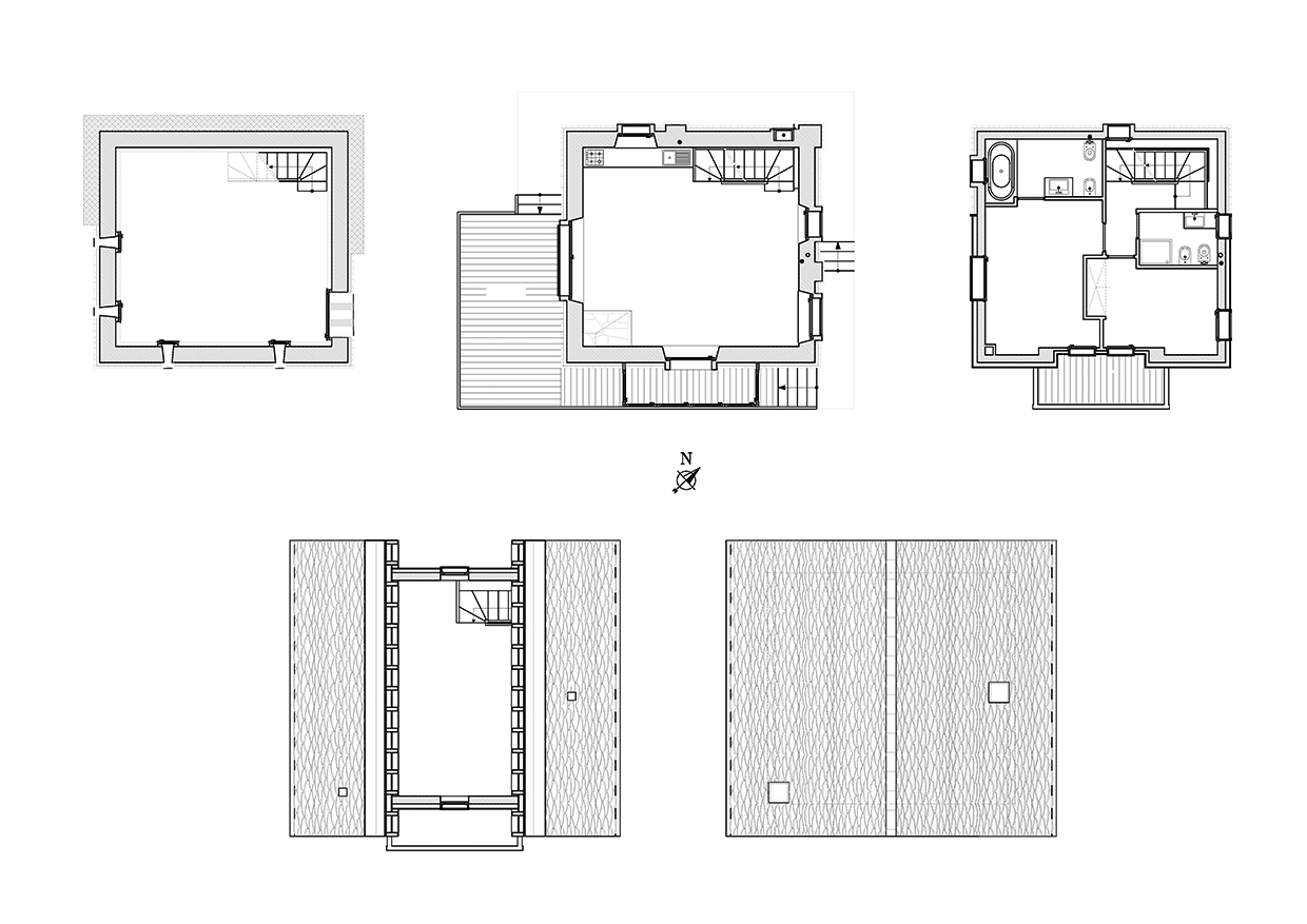
Chalet a Champoluc


In a high-risk avalanche area we rebuilt an existing house dating back to 1952 so as to withstand snow-slides. The windows selectively face the enchanting landscape of the Val d’Ayas and Monte Rosa.


Impresa: ALFA Legno, Verres
Strutturista: Emanuele Franchi, Brescia