Masseria, Muro Leccese


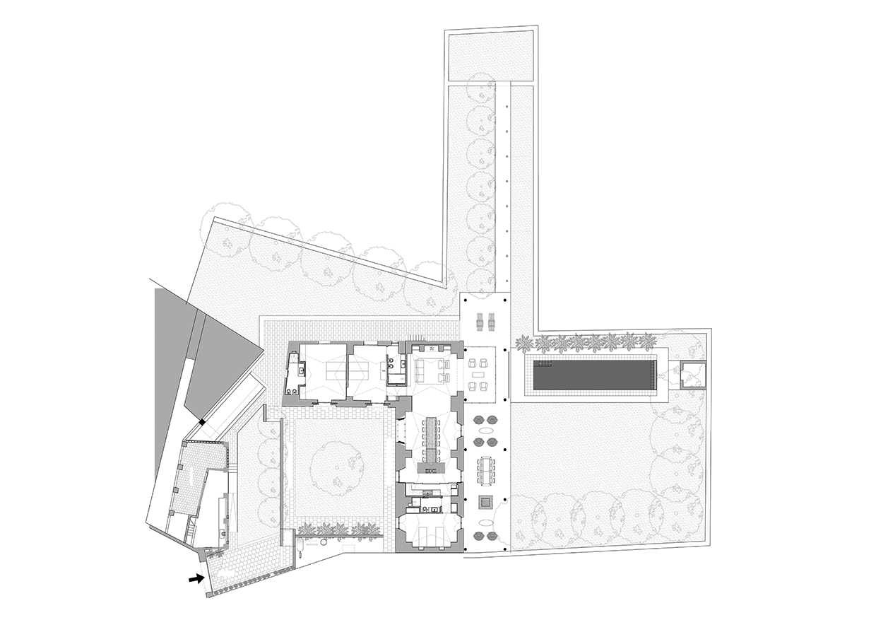
Restoration of a masseria located in the village historic core of Muro Leccese, Salento (Apulia). The building is characterized by high groin vaulted naves and surrounded by a vast garden with forking geometry. The project aims to face the house towards the garden and establish a connection with the different wings. A large south-facing arcade provides shade to the outdoor living area. The horizontal structure of the arcade provides a spatial alternation with the vertical, vaulted ancient body. Inside the building the partitions do not interfere with the ceilings and particular care has been devoted to recover original materials.


Strutture: Ing. Damiano Vantaggiato, Cutrofiano
Impresa: Costruzioni a volta di Francesco Pidri, Martano
Impianti: Daniele Trazza, Muro Leccese
Impianto elettrico: Biagio Raona, Corsano
Serramenti e opere in ferro: F.lli Moroni srl, Alessano
Giardino: Vivai del Salento di Antonio Castrignanò
Arredi DMW Daniela Wajskol Home