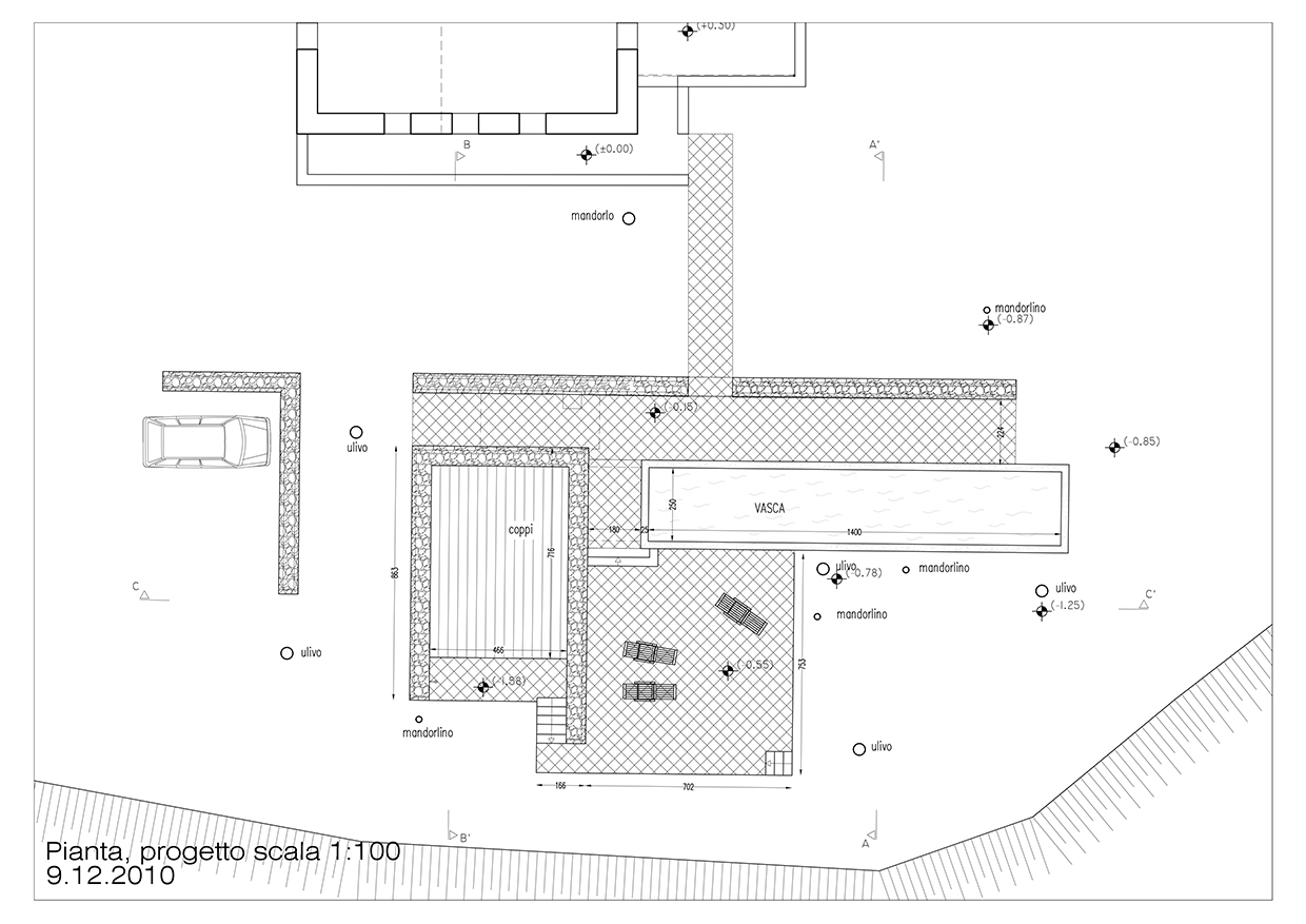
Piscina a Portelle, Noto


Swimming pool realized for a country house in Noto. The aim was to build a tank above ground level finished with the same plaster inside and outside so as to resemble a watering place. A system of dry-stone β€œbackdrops” hides it from the house and conceals the pool machinery.